T E S S A V O L L M E I E R




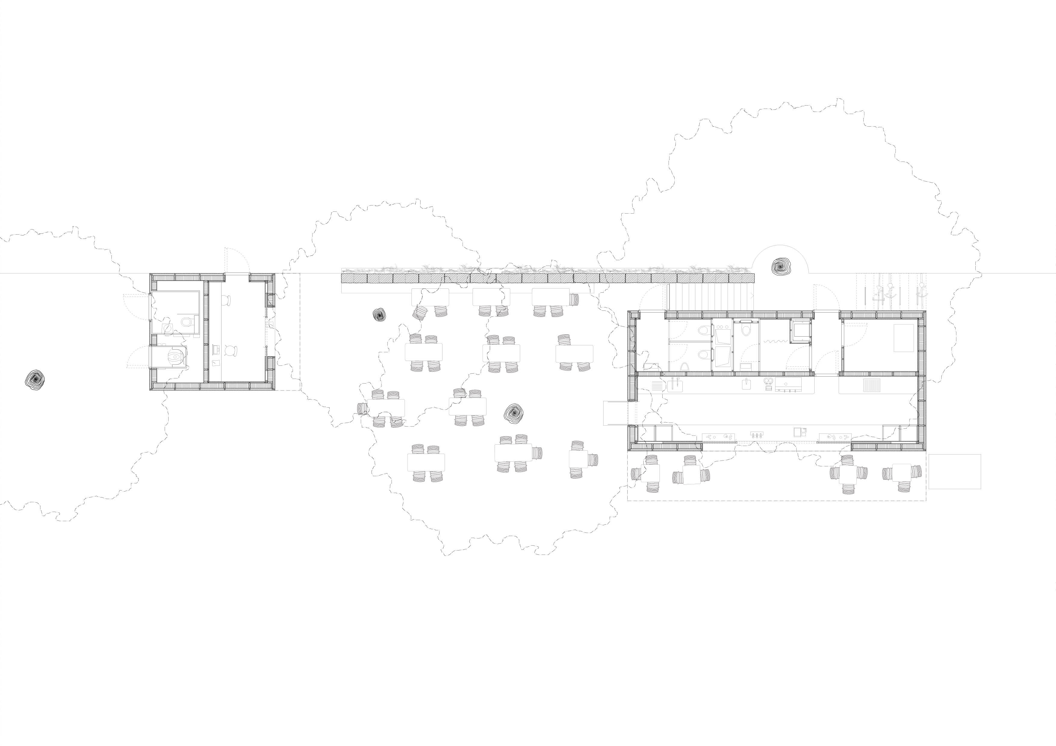
Bürklikiosk

new Kiosk for the Stadthausanlage, Zurich
competition 

2022 



in collaboration with Hanna Olszowa


 

©  2 0 2 5    T E S S A V O L L M E I E R